


148 031 ₽/м²
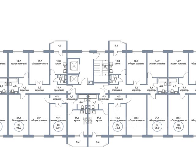
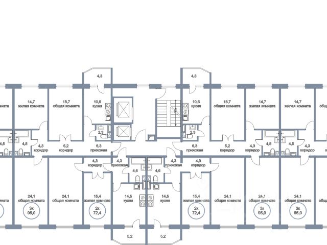
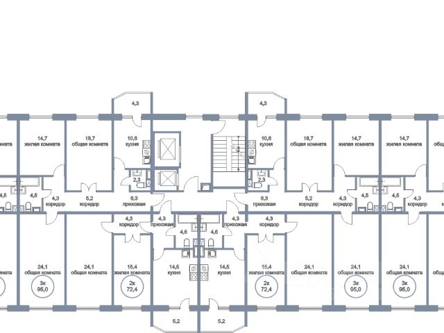
Готовые квартиры со скидкой до 35%. Звоните, мы вам все подробно расскажем! Просторная 2-комн. квартира с предчистовой отделкой в ЖК "Новин" на 13 этаже. Общая площадь: 88.36 кв.м., жилая: 28.7 кв.м., площадь просторной кухни-гостиной: 23.8 кв.м. Квартира угловая, идеально подойдет любителям тишины и панорамных видов. В квартире одна лоджия, два совмещенных санузла. Высота потолков 2.74 м. Дом монолитный, многоподъездный, переменной этажности, от 8 до 17 этажей. Квартира находится в 7-й секции высотой 15 этажей в корпусе 5. На этаже 6 квартир. В подъезде 1 пассажирский и 1 грузовой лифт. На сегодняшний день строительство окончено, дом сдан в 1 квартале 2025 года. Оформление сделки по договору купли-продажи. Квартира с кухней-гостиной и двумя спальнями в квартале "Новин". Особенности планировки: второй санузел, гардеробная, лоджия, предчистовая отделка, постирочная. квартиры в нашей базе: НС-ГП5-7-415. Квартал "Новин" расположен на западе Сургута в районе с хорошо развитой инфраструктурой. Рядом — парк "Кедровый Лог", детские сады, поликлиника, продуктовые магазины и торговые центры. До центра города — 20 минут на автомобиле. Пять домов уже заселены. Ещё три находятся на этапе возведения. Квартал находится в западной части Сургута на пересечении Югорского тракта и улицы Игоря Киртбая. Можно быстро добраться до любой точки города по Югорскому тракту. В районе уже сформированная инфраструктура. Рядом расположены крупные торговые центры, три детских сада, поликлиника, парк и спортивная база. На первых этажах квартала спроектированы коммерческие помещения под повседневные сервисы для жителей: магазины, кафе, аптеки и другие полезные функции. Проектом развития территории предусмотрено строительство детского сада и общеобразовательной школы. Во дворах предусмотрены сценарии для разных категорий жителей, в том числе и площадки для тихого отдыха с фонтаном и арт объектом. Детская площадка раскрывает игровой потенциал территории за счёт разных возможных типов взаимодействий, среди которых присутствуют: контакт с природой, смена уровня игры и контролируемый риск, сотрудничество и игра в команде, а также спокойный сценарий с качелями. Между домами второй очереди мы спроектировали общественное пространство. Здесь также расположатся спортивные и игровые площадки, велопарковки и площадь событий. Главной точкой притяжения станет фонтан. #ZzCEs6 Купить 2-комнатную квартиру на 13 этаже в Ханты-Мансийском АО.









































































































































