


115 738 ₽/м²
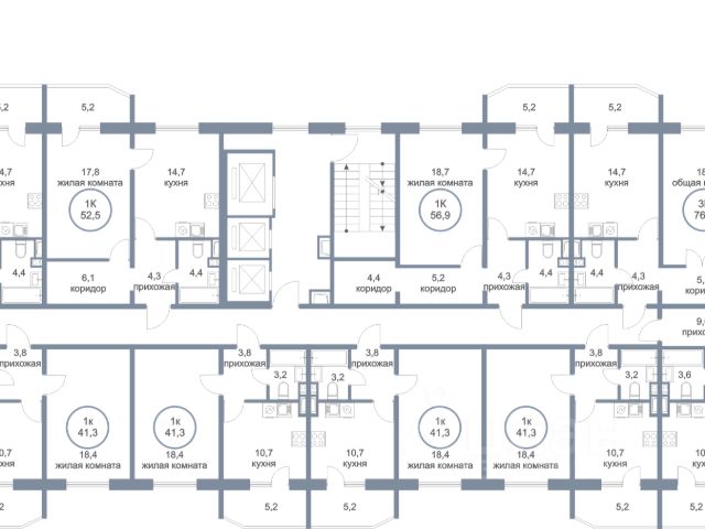
Продаётся 1-комнатная квартира в сданном доме (Единства, 10/1), срок сдачи: I-кв. 2026, общей площадью 41.3 кв.м., на 10 этаже. ЖК "Яркий" - это современный жилой комплекс в пгт. Белый Яр Сургутского района. Главным преимуществом проекта является его расположение. "Яркий" - жилой комплекс для тех, кто хочет переехать в новое жилье, не покидая уже привычной территории поселка. Но при этом к услугам будущих новоселов остается доступной вся инфраструктура города Сургута, до которого легко добраться. В доме представлены одно-, двух- и трехкомнатные квартиры площадью от 35,2 кв. м до 89,7 кв. м, уже с предчистовой отделкой.



















































































