Мы используем куки-файлы. Соглашение об использовании
Помещение свободного назначения, от 103,5 до 512,8 м²

Продается помещение свободного назначения, 103,5 – 512,8 м²

Площади103,5 – 512,8 м²
Этаж1 из 16
Доступно 5 площадей
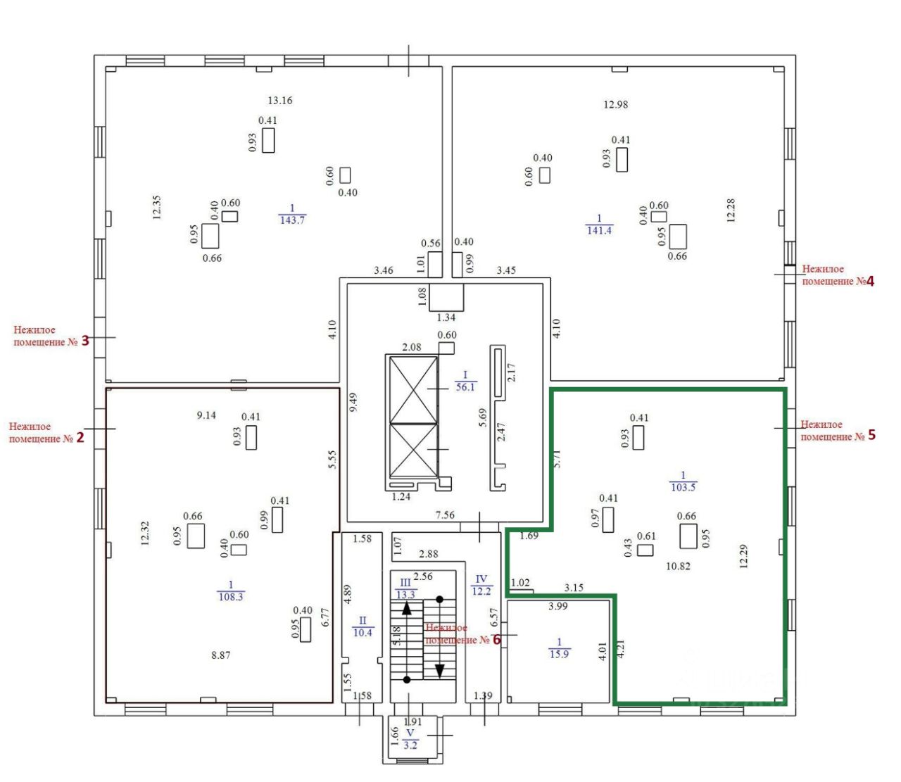
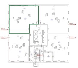
103,5 м²
1 этаж
10 453 500 ₽
101 000 ₽/м²
108,3 м²
1 этаж
10 938 300 ₽
101 000 ₽/м²
141,4 м²
1 этаж
14 281 400 ₽
101 000 ₽/м²
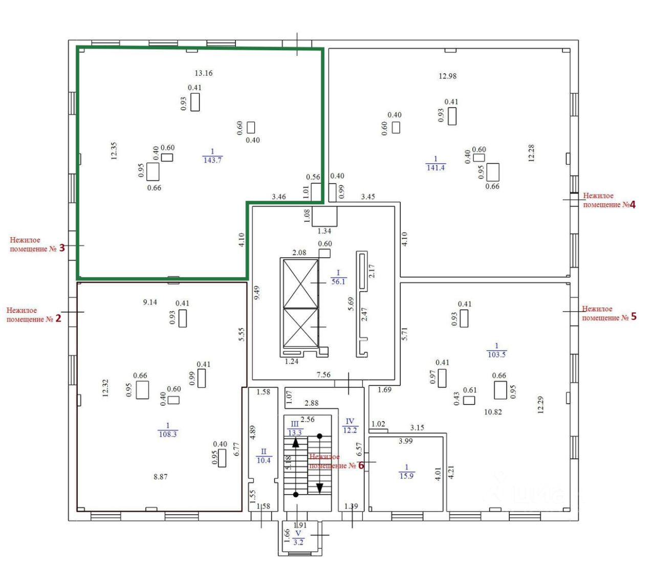
143,7 м²
1 этаж
14 513 699 ₽
101 000 ₽/м²
512,8 м²
1 этаж
51 792 799 ₽
101 000 ₽/м²
Продаются нежилые помещения на 1 этаже нового дома (2025 г.) Адрес: ХМАО, г. Нефтеюганск, 17 мкр., д. 3, корп. 3. Свободное назначение, свободная планировка. Каждое помещение стоит на отдельном кадастровом учёте. Площади: • 108,3 кв.м — отдельный вход • 143,7 кв.м — 2 отдельных входа • 141,4 кв.м — отдельный вход • 103,5 кв.м — отдельный вход Продажа по отдельности или одним лотом (весь 1 этаж - общая площадь 512,8 кв.м). Каждое из предлагаемых помещений имеет обособленный вход, имеется вентиляция и подключение к ГВС/ХВС/канализации. Электроэнергия из расчёта- 25 кВт на помещение ( обсуждается увеличение). Первая линия, новый дом, отдельные входные группы. Подходит под торговлю, офис, услуги и др. Продажа от собственника, без комиссии. Звоните для уточнения условий и просмотра.
lock

Войдите или зарегистрируйтесь
для просмотра информации

Просматривайте условия сделки и всю информацию об объекте
Сохраняйте фильтры в поиске и не вводите заново
Доступ к избранному с любого устройства
Неограниченное добавление в избранное
Позвоните автору
Вам ответят на все вопросы
Остались вопросы по объявлению?
Позвоните владельцу объявления и уточните необходимую информацию.
  • Инфраструктура
  • Похожие рядом
  • Тип зданияЖилой дом
  • Общая площадь512,8 м²
Помощь надёжных риелторов
Риелтор партнёр Циан поможет купить или продать любую недвижимость
Автор объявленияЖК Правый берег
  • 1 месяц на Циане
  • 8 объявлений
  • 10 453 500 – 51 792 800 ₽
    от 140 036 до 693 818 $
    от 119 439 до 591 771 €
    Цена за метр
    от 101 000 ₽
    Налог
    УСН
    Автор объявленияЖК Правый берег