Мы используем куки-файлы. Соглашение об использовании
Помещение свободного назначения, 352 м²

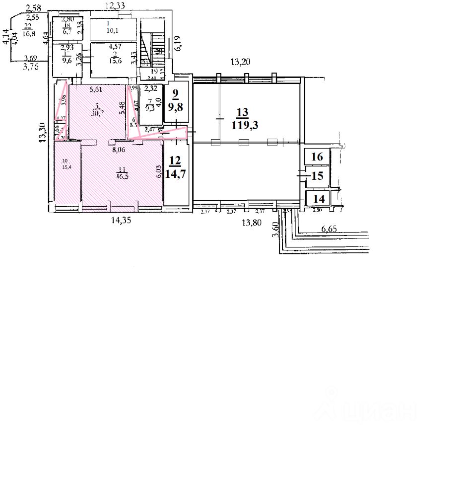
Сдается помещение свободного назначения, 352 м²

Площадь352 м²
Этаж1 из 4
сдаются в аренду нежилые помещения в административном здании на 1, 3 и 4 этаже общей площадью 352 кв.м. Центр г. Нефтеюганска. На 1 этаже - площадь 104,65 кв.м. Отдельный вход. Ставка арендной платы -1600 руб./кв.м. в месяц с НДС. На 3,4 этаже - площадь 247,4 кв.м (возможна покабинетная аренда). Ставка арендной платы - 1385 руб./кв.м. в месяц. с НДС. Арендная плата включает в себя теплоснабжение, водоснабжение, стоимость охранных услуг и иные затраты Арендодателя, производимые им в процессе оказания услуг (кроме уборки арендуемых помещений и вывоза отходов). В случае проведения ремонта (неотделимые улучшения) Арендаторам предоставляются арендные каникулы на срок не более 2 месяцев арендной платы. Здание не предполагает размещение несовершеннолетних, не предполагает оказание услуг по присмотру и уходу за детьми в организациях, осуществляющих образовательную деятельность, услуг по проведению занятий с несовершеннолетними детьми, не предполагает реализацию товаров и оказанию иных услуг детям. Аренда от собственника. Условия уточняйте по телефону, указанному в объявлении. Звоните! Ответим на все вопросы.
lock

Войдите или зарегистрируйтесь
для просмотра информации

Просматривайте условия сделки и всю информацию об объекте
Сохраняйте фильтры в поиске и не вводите заново
Доступ к избранному с любого устройства
Неограниченное добавление в избранное
Позвоните автору
Вам ответят на все вопросы
Остались вопросы по объявлению?
Позвоните владельцу объявления и уточните необходимую информацию.
  • Инфраструктура
  • Похожие рядом
  • Общая площадь352 м²
Помощь надёжных риелторов
Риелтор партнёр Циан поможет купить или продать любую недвижимость
563 200 ₽/мес.
7 956 $/мес.
6 763 /мес.
Цена за метр
19 200 ₽ в год
Налог
НДС включен: 101 376 ₽
Комиссия
100%
Коммунальные платежи
не включены
Эксплуатационные расходы
не включены
Агентство недвижимости
Документы проверены