Первичная продажа



Только на Циан
дом сдан
4 590 000 ₽
111 138 ₽/м²
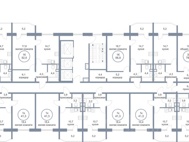
Продаётся 1-комнатная квартира в сданном доме (Московская, 25), срок сдачи: IV-кв. 2025, общей площадью 41.3 кв.м., на 1 этаже. Новый жилой комплекс "На Московской" от застройщика "Сибпромстрой" расположен по адресу: Ханты-Мансийский автономный округ, пгт Фёдоровский, Московская улица.







































































































































































